Дом, 142,8 м², 1 эт.

Ставропольский край, Ставрополь, улица Вадима Алевцева

25 000 000 руб.

175 071 руб./м²

Описание Объект №1285

Мечтаете о жизни в тихом и экологически чистом районе в собственном доме?

В элитном коттеджном посёлке «Горизонт» мы предлагаем вам изысканное жильё с тщательно продуманными планировками и просторными террасами

Эта закрытая "капсульная" улица, на которой расположены

23 дома, выполненные в едином архитектурном стиле.

Все здания построены из высококачественных материалов и соответствуют высоким стандартам строительства.

Основные характеристики:

  • Сдача проекта: 1 квартал 2026 года.
  • Материалы: натуральный камень, керамический кирпич, мягкая кровля.
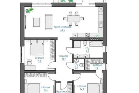
  • Планировки: просторные кухни-гостиные, открытые террасы для отдыха, панорамные окна из тёплого алюминиевого профиля Alutech.
  • Интерьеры: мастер-спальни и гардеробные с окнами, предчистовая отделка White box (стяжка, штукатурка, электрическая разводка).
  • Инженерия: двухконтурные итальянские котлы BAXI, система «тёплый пол» во всех помещениях, кроме жилых комнат

Конструкция:

  • Ширина внешних стен — 51 см
  • Потолки 3,2
  • Монолитные перекрытия
  • Забутовка и перегородки из керамического кирпича — отличная теплоизоляция и экономия на отоплении
  • Дом огорожен по периметру забором, установлены автоматические въездные ворота и калитка, видеодомофон, тротуарная плитка.

Коммуникации:

  • Центральные подключения: магистральный газ, скоростной интернет, центральная канализация, электричество.

Безопасность:

  • Посёлок имеет закрытую территорию, автоматические ворота, систему контроля доступа и круглосуточную охрану 24/7
  • На улице установлено видеонаблюдение и видеодомофоны в каждом доме

Инфраструктура:

  • В поселке предусмотрены:
  • благоустроенный сквер с зонами отдыха для взрослых и детей
  • здания коммерческого назначения — рестораны, магазины, салоны красоты, аптеки.

Условия покупки: Мы предлагаем гибкие условия покупки — ипотеку и рассрочку на индивидуальных условиях.

ПОКАЗ В УДОБНОЕ ДЛЯ ВАС ВРЕМЯ! ЗВОНИ.

  • Площадь участка :

  • Тип :

  • Площадь :

  • Этажность :

  • Водопровод :

  • Отопление :

  • 6 сот.

  • Дом

  • 142,8 м²

  • 1

  • Подключен

  • Индивидуальное

  • Тип участка :

  • Материал дома :

  • Ремонт :

  • Кол-во комнат :

  • Газ :

  • ИЖС

  • Кирпичный

  • Чистовая

  • 3

  • Подключен

Карта Ставрополь, улица Вадима Алевцева

Похожая недвижимость

Дом, 134,5 м², 1 эт.
  • Продажа
25 000 000 руб.

Дом

Дом, 134,5 м², 1 эт.

Ставрополь, улица Вадима Алевцева

Дом, 155 м², 2 эт.
  • Продажа
25 500 000 руб.

Дом

Дом, 155 м², 2 эт.

Ставрополь, улица Владимира Калмыкова, 2

Дом, 140 м², 1 эт.
  • Продажа
25 000 000 руб.

Дом

Дом, 140 м², 1 эт.

Ставрополь, улица Вадима Алевцева

Дом, 160 м², 1 эт.
  • Продажа
25 000 000 руб.

Дом

Дом, 160 м², 1 эт.

Ставрополь, улица Гавриила Чередника, 53

Дом, 180 м², 2 эт.
  • Продажа
25 500 000 руб.

Дом

Дом, 180 м², 2 эт.

Ставрополь, улица Владимира Калмыкова

Дом, 270 м², 2 эт.
  • Продажа
25 000 000 руб.

Дом

Дом, 270 м², 2 эт.

Ставрополь, улица Александра Горчакова

Дом, 160 м², 1 эт.
  • Продажа
25 000 000 руб.

Дом

Дом, 160 м², 1 эт.

Ставрополь, улица Гавриила Чередника